• 14, rue Catherine Ségurane, 06300, Nice, France
  • +33 (0)4 93 31 72 48
  • E-mail: atelier@paolobandini.com
Atelier Bandini Architectes
  • Home
  • L’ Architetto
  • Progetti
  • Contatti
  • Français
  • English
  • Italiano
  • Hotel e residenze private, Diano Castello, Italia
  • Hotel e residenze private, Diano Castello, Italia
  • Hotel e residenze private, Diano Castello, Italia
  • Hotel e residenze private, Diano Castello, Italia
  • Hotel e residenze private, Diano Castello, Italia
  • Hotel e residenze private, Diano Castello, Italia
  • Hotel e residenze private, Diano Castello, Italia
  • Hotel e residenze private, Diano Castello, Italia

Hotel e residenze private, Diano Castello, Italia

Il presente studio ipotizza l’inserimento, all’interno di un lotto non edificato, di una struttura alberghiera e di alcuni edifici residenziali.
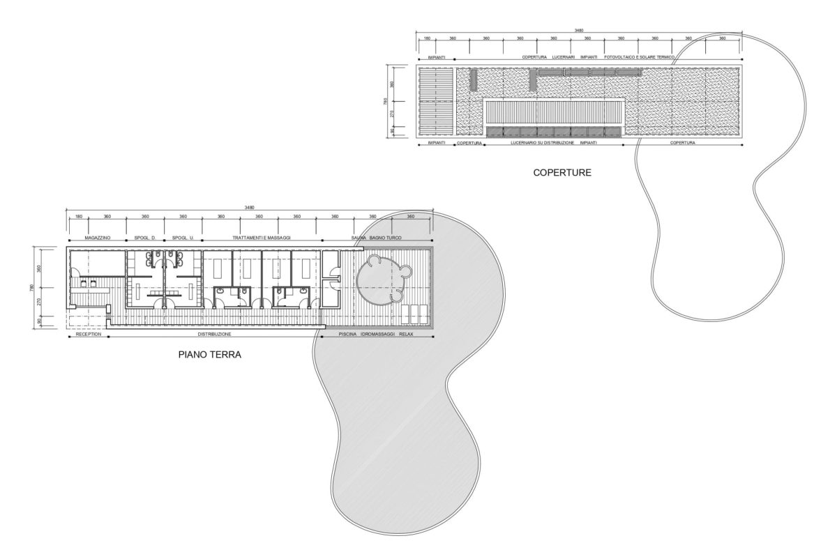
Il complesso ricettivo è composto da un albergo e da un edificio separato adibito a centro benessere. Le residenze sono suddivise in due tipologie: alcune villette isolate e una piccola schiera.
A completamento del progetto sono previsti un parco pubblico e parcheggi, sia di pertinenza dell’albergo che a disposizione della collettività.
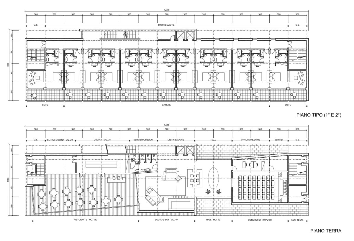
L’albergo prevede camere e suite, ristorante, sala colazione, lounge bar, roof garden, sala congressi e servizi, mentre il centro benessere prevede una piscina coperta che si estende anche all’esterno, sauna, bagno turco, sale per trattamenti, servizi.
A seguire al presente studio, la Committenza, dopo averne studiato dati e possibilità ha deciso – nell’immediato futuro – di proseguire prima con la realizzazione di una parte di residenza ed a seguire con la struttura turistico ricettiva.

  • Progetto : hotel 4 stelle, centro benessere, parco urbano, parcheggio
  • Luogo : Diano Castello (Italia)
  • Committente : New Castle S.r.l.
  • Anno : 2013
  • Superficie progetto : 3.500 m²
  • Importo lavori : 9.200.000 €
  • Stato : Non realizzato
share
  • Twitter
  • Facebook
  • LinkedIn

Progetti simili

  • FONDAZIONE MAUGERI, MONTESCANO, ITALIA

    FONDAZIONE MAUGERI, MONTESCANO, ITALIA

    Terziario
  • PORTALE DI LEVANTE Fiera di Genova, GENOVA, ITALIA

    PORTALE DI LEVANTE Fiera di Genova, GENOVA, ITALIA

    Terziario
  • Edificio uffici, Genova, Italia

    Edificio uffici, Genova, Italia

    Terziario
  • Spazio commerciale e servizi pubblici, Entrevaux, Francia

    Spazio commerciale e servizi pubblici, Entrevaux, Francia

    Terziario
Copyright © 2021 Atelier Bandini Architectes
Designed by Atelier Bandini Architectes
Nous utilisons des cookies pour vous garantir la meilleure expérience sur notre site web. Si vous continuez à utiliser ce site, nous supposerons que vous en êtes satisfait.